Alute
Indoor Handrail for Wall Mount
On the wall, a careful line
The Alute interior handrail, previously available only for stairwells and staircases, is now available for walls. The plain finish of the individual parts gives the product a sharply honed design that sets it apart from other mass-produced products.
News
Features

Long-awaited wall-mounted type
Until now, Alute has been available for both stairwells and staircases with a support column. This wall-mounted type has been requested by many customers. The wall-mounted type is designed to match the design context of the stairwell and stairway types, and draws "careful lines" on the wall surface. From now on, even at sites where both stairwell and staircase handrails and wall-mounted handrails are installed, a sense of unity can be created in the space.

Both aluminum and wood shades are available
In addition to the aluminum shade tree that beautifully accommodates the bracket, you can also choose a Φ35mm wooden round bar (black matte finish).
It is also possible to use the Φ35mm wooden round bar that you have prepared.

Affinity by Series
By using both the pillar type and wall-mount type Alute in the same space, you can maximize the synergy effect of creating a sense of unity and affinity that only a product series with the same design context can bring out.
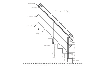
Specifications

| Size | Drawing Reference |
|---|---|
| Colour | Black |
| Materials |
Aluminum extrusion mold material (aluminum shade tree) Rubber laminated wood (wood shade tree) Zinc die-casting (bracket) Polypropylene (bracket cover) |





